
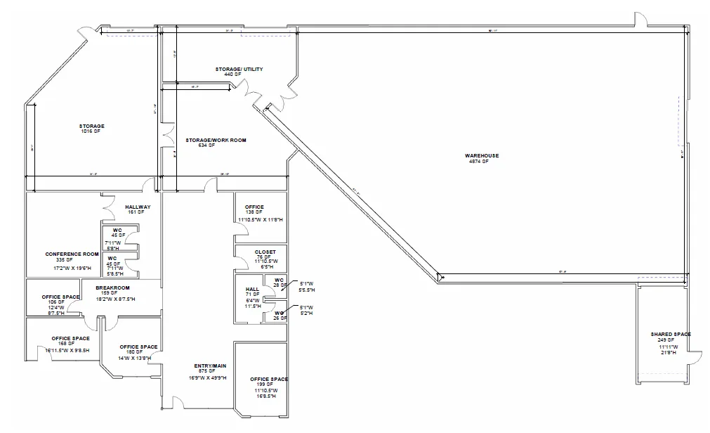
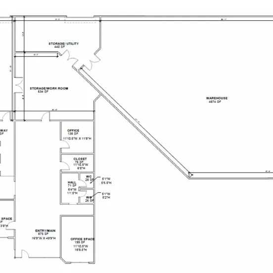
Well located industrial/flex property for lease
in Rockwall’s established Alpha Road industrial
corridor.
+9,900 SF currently available, excellent fit for small
to mid-size users seeking a functional, right-sized
industrial footprint.
This space is well suited for light-industrial,
warehouse/distribution, flex office-industrial, trades,
service companies, and local owner-operators,
offering an efficient layout that balances warehouse
functionality with dedicated office space.
The property provides convenient access to I-30
and major arterial roadways, allowing for easy
connectivity throughout Rockwall, the eastern DFW
submarket, and Dallas.
| 1 mile | 3 miles | 5 miles | |
|---|---|---|---|
| 2025 Population | 4,596 | 43,326 | 107,883 |
| 2030 Projected Population | 5,355 | 51,836 | 98,110 |
| Daytime Population | 9,294 | 51,836 | 98,110 |
| Average HH Income | $108,256 | $135,174 | $145,962 |