
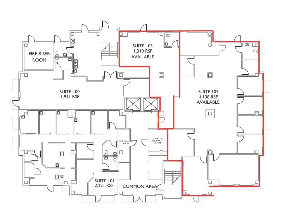
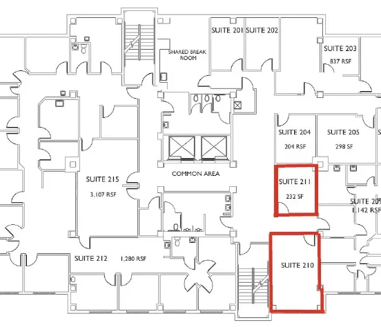
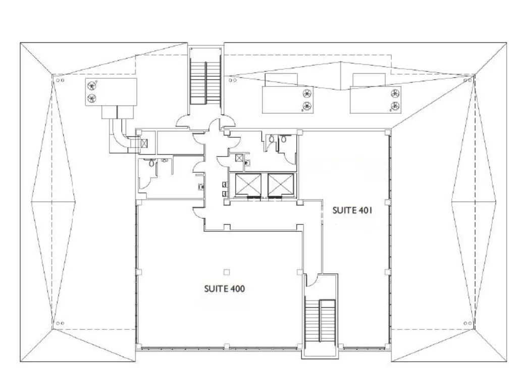
4-STORY 31,297 RSF office tower
Great location at the NEQ of Lakeview Pkwy/Hwy 66 & Rowlett Rd
Finished office suites
Fully furnished conference room
| 1 mile | 3 miles | 5 miles | |
|---|---|---|---|
| 2025 Population | 8,906 | 76,027 | 239,301 |
| Daytime Population | 12,216 | 55,096 | 182,253 |
| Households | 3,054 | 24,145 | 73,273 |
| Average Household Income | $116,954 | $132,378 | $117,554 |